BACK TO RESIDENCES

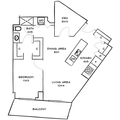
Friend with Den

Diagram
One Canal Apartment Homes Available Now - One bedroom apartments
One Canal Apartments - Boston, MA - Kitchen

One clear price that includes all required monthly fees—no fine print, no surprises.

Available Units

Unit #917
Starting at $4,777
961 Sq. Ft.
Available Now