BACK TO RESIDENCES

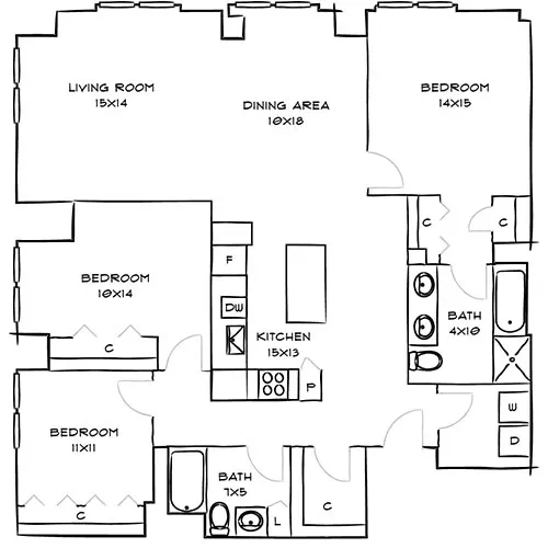
Canal Penthouse

Diagram
3-bedroom apartments for rent at One Canal Apartment Homes
One Canal Apartment Homes - Boston, MA - Kitchen

One clear price that includes all required monthly fees—no fine print, no surprises.

Available Units